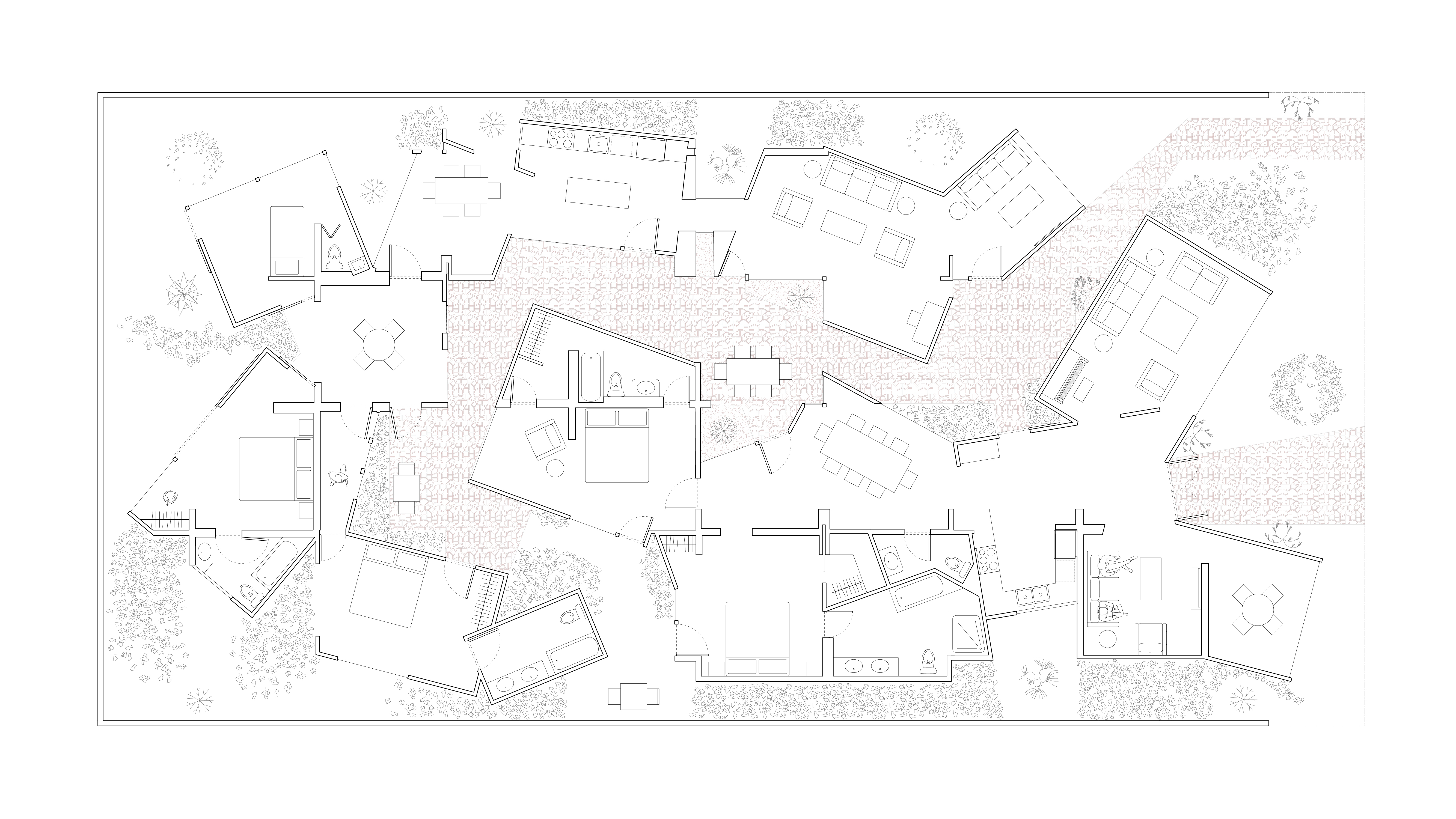
This project focused on the issue of the single-family plot in Los Angeles. As a design challenged, the plot was turned into a single story duplex, with two families inhabiting the same property. A narrative was developed from which the design responds. The plan was initially developed by collaging and altering two reference plans: the Meri House by Pezo von Ellrichshausen and the Moriyama House by SANAA. As the project turned 3D, the roof design was created by using vernacular gables and cutting through them with the perimeter of the plan, with the roofs inverted depending on which family the house belongs to. A wrap-around wooden slat material was applied to the project as a whole, with windows showing the sectional quality of the model.
Narrative:
Household #1 is composed of two grandparents, a single mother, and her young daughter. The family is friendly to their neighbors but introverted in general and its members like to have their own private spaces.
Household #2 is composed of a brother and his sister that live together with their corresponding partners. They often like to have friends over and therefore prioritize their social living spaces. The household is friendly to their neighbors, they are very extroverted, and enjoy spending time with other people.
The two households get along but there is some tension in that while one household is very outgoing, some of the members of the other family like to live more privately.
Progress plans and massing models:
This project was developed as part of Studio II at UCLA, under Professor Kutan Ayata.








